
La muestra permanecerá abierta hasta el 29 de junio, coincidiendo con la Feria del Libro de Valladolid. La concejala de Educación y Cultura, Irene Carvajal, y el codirector de Contemporánea, Mario Martín, han presentado esta mañana la muestra ‘El show de Agatha...
- Fecha de la noticia
- 12 de mayo de 2025

La duración de la cesión se establece por un período de 50 años.La Junta de Gobierno Local ha dado hoy luz verde a la concesión directa del uso de la parcela 103A, en la calle Julio Senador Gómez, en el barrio de Parquesol, a favor de SOMACYL, para el desarrollo...
- Fecha de la noticia
- 12 de mayo de 2025

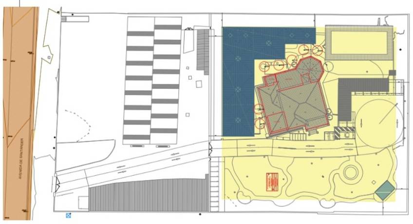
La Junta de Gobierno Local ha dado luz verde en su sesión de hoy a las licencias ambiental y de obras con uso provisional de suelo para la ejecución de un complejo turístico de hospedaje y hostelería en la Avenida de Santander, denominado ‘La Pava’.El proyecto...
- Fecha de la noticia
- 12 de mayo de 2025








